Osnovna škola Voštarnica – Zadar je jedina posebna odgojno-obrazovna ustanova u Zadarskoj županiji u kojoj se provodi osnovno školovanje učenika s većim teškoćama u razvoju. Odgojno-obrazovni rad temelji se na posebnim nastavnim planovima i programima primjerenim individualnim potrebama i mogućnostima učenika.

U školi se provode tri nastavna programa: program za učenike s lakom mentalnom retardacijom s utjecajnim teškoćama u razvoju, program za učenike s umjerenom i težom mentalnom retardacijom te program za učenike s autističnim poremećajem s utjecajnim teškoćama u razvoju. Osnovna škola Voštarnica - Zadar ima dva područna odjela pri PO Smilčić.

            U školskoj godini 2024./2025. školu pohađa 137 učenika. Učenici su raspoređeni u 32 odgojno-obrazovne skupine (1 skupina produženog stručnog postupka) i 4 kombinirana razredna odjela.

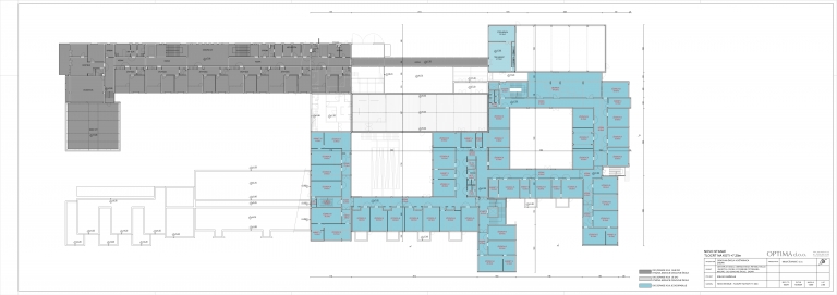
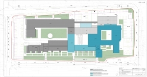
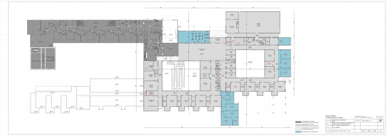
            Nastava se odvija u školskoj zgradi na predjelu Mocire gdje su prostorni uvjeti iznimno kvalitetni i u potpunosti prilagođeni radu posebne ustanove kakva je OŠ Voštarnica – Zadar, međutim prostorni kapaciteti nisu dostatni porastu broja učenika te se od školske godine 2025./2026. očekuje prelazak na rad u 3 smjene.

            Rast broja učenika, s obzirom na kapacitet zgrade, u zadnjih 10 godina je bio sa 77 učenika u školskoj 2014./2015. godini na 157 učenika (90 Grad Zadar i 57 Županija) u školskoj 2024./2025.godini (za 17 učenika je  odgođen upis za 1. god zbog nedostatka prostora – učenici ostaju još jednu godinu u DV Latica) što čini ukupan rast od 60 učenika.

Kada bi OŠ Voštarnica imala dovoljno prostora, uzimajući broj od 137 postojećih učenika u školskoj 2024./2025. godini te odgođenih obveznih 17 učenika iz školske 2023./2024. godine, dolazimo do postojećeg stanja od 154 učenika, a kada se uzme porast učenika u spektru koji bi gravitirali OŠ Voštarnica iz cijele županije onda dolazimo do brojke od oko 219 učenika već u školskoj 2025./2026. godini odnosno 284 učenika u školskoj 2026./2027. referentnoj NPOO godini. OŠ Voštarnica raste u ovako velikom broju jer je jedina posebna odgojno obrazovna ustanova u Zadarskoj županiji dok svi veći gradovi imaju odvojene Centre za autizam i odgojno-obrazovne ustanove.

            Slijedom analize i uzimajući u obzir kako bi prosjek učenika po IT skupini bio 5, a najviše 3 učenika u PSA skupinama kao referentna projektirana školska godina navodi se 2026./2027., a sukladno porastu broja učenika, u Osnovnoj školi Voštarnica će u školskoj 2026./2027. godini biti potrebno 86 učionica te je od strane MZOM-a odobreno idejno rješenje dogradnje u skladu s potrebama.

Vrijednost investicije sukladno troškovnicima: 13.185.817,67 € (Grad Zadar 392.071,51 €)

Status projekta: izrađen glavni projekt i troškovnici, prijavljeno na NPOO, čeka se odobrenje projekta i donošenje Odluke o financiranju.

Vezane fotografije