PISARNICA GRADA ZADRA Radno vrijeme sa strankama: PON-PET 08:30-14:00 h SRIJEDOM 08:30-20:00 PAUZA 11:30-12:00 h E-mail za primanje pismena: pisarnica@grad-zadar.hr
S radom je započela Služba prometnog redarstva Grada Zadra. Broj telefona putem kojeg građani mogu kontaktirati prometne redare i prijaviti uočene nepravilnosti u prometu je 627 – 701 i br. mob. 099 607 3480 svakim radnim danom uključujući i subotu od 7 do 14 sati i od 14 do 21 sat. Služba prometnog redarstva dežurna je i nedjeljom.
Radno vrijeme gradske uprave je klizno u vremenu od 7 do 16 sati. Svi gradski upravni odjeli i službe radit će u navedenom razdoblju svakodnevno uz dnevni odmor od 11:30 do 12:00 sati.
Od 1. listopada 2009. Grad Zadar posluje pod novim matičnim brojem: 2546558; OIB: 09933651854
Obrazovanje za generacije budućnosti: Dvije tisuće zadarskih osnovnoškolaca zainteresiranih za STEM i aktivno građanstvo
Rekordan broj mladih i učitelja i povratak popularnog steAm tjedna obilježit će novu školsku godinu ispunjenu inovacijama, znanjem i kreativnošću.
Gotovo dvije tisuće zadarskih osnovnoškolaca već je sudjelovalo u izvannastavnim aktivnostima iz područja STEM-a i aktivnog građanstva, potvrđujući kako kontinuirano ulaganje u obrazovanje donosi konkretne rezultate. Projekt „Jačanje STEM vještina u osnovnim &scaron...
Grad Zadar za izgradnju i opremanje rekonstrukcije OŠ Krune Krstića iz NPOO programa dobio bespovratnih 7.163.867,53 eura
Grad Zadar u 2026. godini nastavlja s intenzivnim ulaganjima u osnovne škole
Ulaganja vrijedna 43 milijuna eura za devet ITU projekata
U 2026. godini Grad Zadar ulazi u fazu konkretne provedbe integriranih teritorijalnih ulaganja (ITU).
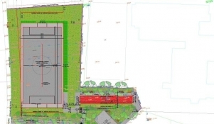
Brojna ulaganja u ŠRC Višnjik - od umjetne trave na nogometnom igralištu do novih semafora u dvorani
U Športski centar Višnjik u 2025. godini uloženo je 302.142,80 eura iz proračuna Grada Zadra
“Mi smo Zadrani, Zadar je naš” - doček rukometaša na Narodnom trgu
Doček na Narodnom trgu održao se za izbornika hrvatske rukometne reprezentacije Dagura Sigurdssona i Zadranina Luku Lovru Klaricu
Mentalno zdravlje mladih i sigurni internet: gdje je granica između stvarnog i virtualnog nasilja?
U Zadru je održan okrugli stol koji je otvorio tešku, ali važnu temu: nasilje nad djecom i mladima u digitalnom prostoru.
Potpisan ugovor - u Zadar stiže 13 električnih autobusa
U Maloj vijećnici Grada Zadra potpisan je ugovor između tvrtke Liburnija d.o.o. i tvrtke Novatec d.o.o.
Zadar dočekuje članove hrvatske rukometne reprezentacije
Obojimo Poluotok crveno - bijelim kockicama i zapjevajmo u čast bronce s Europskog prvenstva!
Zadar postaje regionalno središte europske EIT Water zajednice znanja i inovacija
Događaj u Zadru okupio je predstavnike EK, Europskog parlamenta, hrvatske Vlade, akademske zajednice i inovacijskog sektora.
Grad Zadar sufinancira troškove zaštite spremnika za komunalni otpad
Zahtjevi za sufinanciranje zaštite spremnika za komunalni otpad putem Javnog poziva zaprimaju se do 1. srpnja 2026. godine
U Centru za mlade održana je komemoracija posvećena profesoru dr. sc. Zlatku Miliši, istaknutom hrvatskom pedagogu i sociologu
Komemoraciju su organizirali Udruga za izvannastavne i izvanškolske aktivnosti CINAZ i Odjel za pedagogiju Sveučilišta u Zadru
Korak prema modernijem javnom prijevozu: U Zagrebu potpisan ugovor vrijedan 7,6 milijuna eura
Ugovor za dodjelu bespovratnih sredstava za sufinanciranje nabave vozila na alternativni pogon potpisan je u četvrtak, 29. siječnja
Okrugli stol - Mentalno zdravlje mladih i sigurni internet
Okrugli stol održat će se u Kongresnoj dvorani hotela Kolovare u Zadru, u petak, 30. siječnja s početkom u 13 sati

Grad u računalu
Parking zone