Preskoči na sadržaj

Održan Kolegij gradonačelnika; odabrane tvrtke za održavanje i rekonstrukciju cesta na zadarskim otocima

Održan Kolegij gradonačelnika; odabrane tvrtke za održavanje i rekonstrukciju cesta na zadarskim otocima

U Maloj vijećnici Grada Zadra danas je održan redovni kolegij gradonačelnika Šime Erlića sa suradnicima.

U parku uz prometnicu Kažimira Zankija započela sadnja 205 stabala

U parku uz prometnicu Kažimira Zankija započela sadnja 205 stabala

Grad Zadar provodi projekt "Izgradnja parka uz prometnicu Kažimira Zankija od Puta Bokanjca do Žmirića".

 Veleposlanica Republike Austrije NJ. E. Iyvonne Tončić-Sorinj u nastupnom posjetu gradonačelniku Zadra

Veleposlanica Republike Austrije NJ. E. Iyvonne Tončić-Sorinj u nastupnom posjetu gradonačelniku Zadra

Gradonačelnik Šime Erlić primio je u nastupni posjet austrijsku veleposlanicu u Zagrebu, Nj. E. gđu Iyvonne Tončić-Sorinj.


Započela sadnja stabala uz retencijsko - infiltracijsku građevinu na Bokanjcu

Započela sadnja stabala uz retencijsko - infiltracijsku građevinu na Bokanjcu

Grad Zadar provodi projekt sadnje stabala uz retencijsko-infiltracijsku građevinu na Bokanjcu, a projekt je sufinanciran od strane Zadarske županije

Gradonačelnik Erlić i župan Bilaver obišli nove pogone Maraske u Zadru

Gradonačelnik Erlić i župan Bilaver obišli nove pogone Maraske u Zadru

Nova proizvodna linija marke Dipran trenutačno se nalazi u fazi probnog rada te predstavlja značajan tehnološki iskorak.

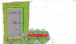
Nastavlja se ulaganje u Višnjik: kreće obnova i proširenje tribina na malonogometnom igralištu

Nastavlja se ulaganje u Višnjik: kreće obnova i proširenje tribina na malonogometnom igralištu

U sklopu Športski centar Višnjik d.o.o. uskoro započinju radovi na dogradnji i uređenju tribine uz otvoreno malonogometno igralište.



1 2 3 4 5